您的位置: 首页 > 球速官网 > 球速体育APP

朋友买的120平米四居室半包一球速体育- 球速体育官方网站- APP下载共才花6万这简欧风格太美了!-明威橡树湾装修

发布日期:2025-10-31 11:05:34 浏览次数:

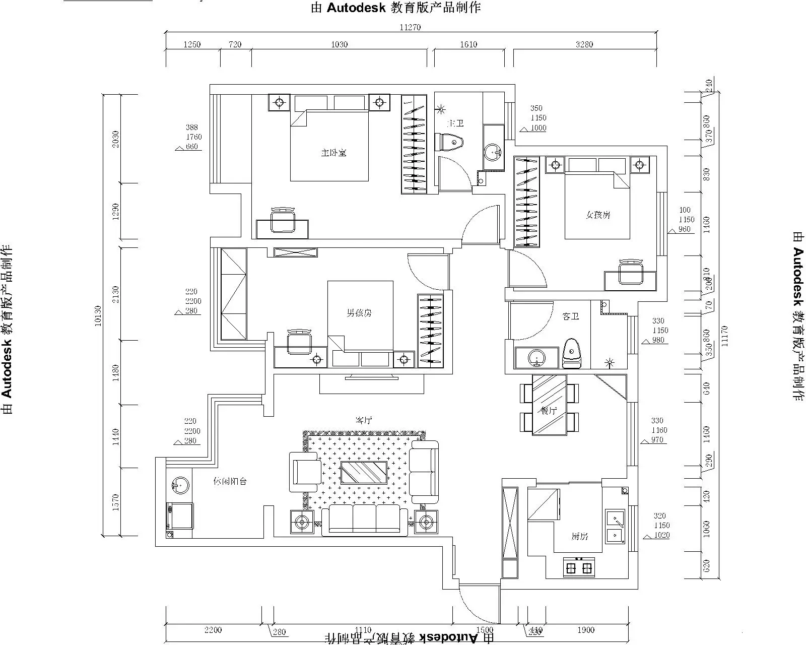
  球速体育,球速体育官方网站,球速体育APP下载明威橡树湾某业主花6万打造120平米简欧风格四居室,装修完效果惊艳众人。对于120平米的房子来说,这套案例堪称教科书级别。房子装修半包6相对来说已经很便宜了,一起来看看业主是如何装修的。

  买房子就怕装修装的不好,120平米的四居室装修可是要很谨慎的,装修没装好房子就白买了。现在都比较流行简欧风格,无论是什么阶段的人都比较喜欢,家具也比较好搭配。今天小编给大家介绍的是明威橡树湾小区装修的一套简欧风格的案例,半包只用了6万。

  【施工单位】:西安城市人家装修公司【业主要求】:沉稳、大气的空间要求。【温馨提示】:本案是城市人家设计师与客户量房沟通后,最终定的定设计案例,喜欢本案设计风格的业主朋友可以预约装修设计

  一个美观又温馨的客厅,首先还是离不开设计。因为合理的设计能将每个犄角旮旯都充分利用上,而且也只有合理的设计才能打造出更合适的造型。

  简欧风格就是简化了的欧式装修风格。也是目前最流行的风格。简欧风格更多的表现为实用性和多元化。

  卧室是人们休息的主要处所,卧室布置得好坏,直接影响到人们的生活、工作和学习,所以卧室也是家庭装修的设计重点之一。卧室设计时要注重实用,其次才是装饰。卧室的装修还要注意它的颜色搭配以及材质选择,一起都要以舒适为主。

  这几年提倡的简约风格,因为加上了现代风格的元素,又可以分为简欧风格(现代欧式风格)、简中风格(现代中式风格新古典主义风格)、现代简约风格等等。

  餐桌的选择需求注意与空间大小配合,小空间配大餐桌或者大空间配小餐桌都是不合适的,因为购买的实质问题,业主很难把东西拿到现场开展比较,因此,在餐厅装修的时候先测量好所喜好的餐桌尺寸后,拿到现场做比较,可避开过大过小。

  简欧家具包括床、电视柜、书柜、衣柜、橱柜等等都与众不同,营造出日常居家不同的感觉。

  为日常居住,首先要考虑到日常生活的功能,不能太艺术化、太乡村化,应多一些实用性功能。

  以上就是小编为各位朋友们带来的,明威橡树湾小区120平米的简欧风格设计案例了,这样的简欧设计是不是让你心动不已呢?通常来讲,120平米的房子适合打造成四居室,高端显大气的简欧风格也值得你选择。假如朋友们装修的话,可以参考本案。另外,各位朋友们在装修的时候也要注意合理利用空间,在满足家人生活习惯的前提下进行装修。